In diesem Kapitel sind technische Zeichnungen und die gesamte
Baugruppe der CM3 zu finden.
Baugruppe:
Die Baugruppe wurde in PTC Creo Version 6 erstellt und kann hier
heruntergeladen werden:
Download Baugruppe
Technische
Zeichnungen:
Für die Fertigung der Cocktailmaschine
wurden technische Zeichnungen erstellt, anhand dieser die Werkstatt
der HsKa die benötigten Teile gefertigt hat. Nachfolgend sind
die technischen Zeichnungen für die Teile zu finden, die in der
Werkstatt gefertigt worden sind.

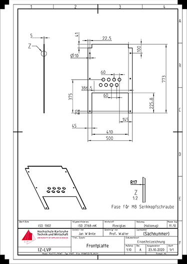
Abbildung 1: Frontplatte
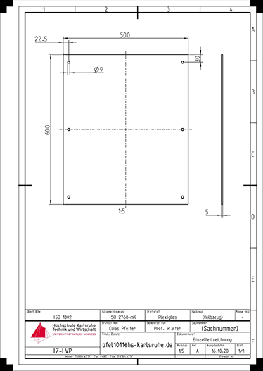
Abbildung 2: Bodenplatte

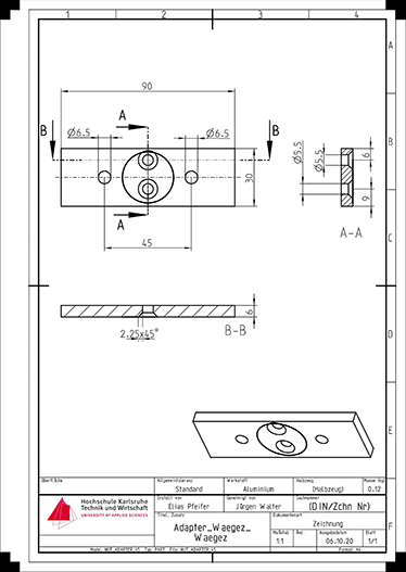
Abbildung 3: Nutadapter
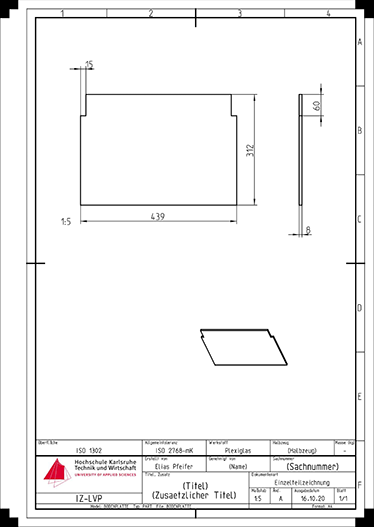
Abbildung 4: Türplatte
|